Mehrzweckgebäude Sennestadt

Das neue Mehrzweckgebäude befindet sich südwestlich des Kunstrasenplatzes. Durch die zentrale Lage an der Rheinallee ist eine gute Einsehbarkeit gewährleistet, sodass das Gebäude klar als öffentlicher Ort wahrgenommen wird. Der Haupteingang ist witterungsgeschützt, und sämtliche Räume sind optimal auf Tageslicht ausgerichtet.

Der Hofbereich orientiert sich zum Sportplatz hin und kann direkt vom Foyer aus betreten werden. Der Multifunktionsraum als größter Raum des Gebäudes öffnet sich mit einer verglasten Fassade ebenfalls zum Sportplatz. Das Foyer ist während des Betriebs öffentlich zugänglich und steht Besucher*innen zur Nutzung zur Verfügung. Die separaten Sanitäranlagen befinden sich in unmittelbarer Nähe zum Foyer und sind flexibel nutzbar.

Die Gebäudeplanung ermöglicht es, unterschiedliche Nutzungsschwerpunkte innerhalb des Hauses zu bilden. Der Multifunktionsraum kann unabhängig vom sportlich funktionalen Gebäudeteil vielseitig eingesetzt werden und eignet sich für verschiedenste Veranstaltungen. Der winkelförmige Grundriss schafft darüber hinaus einen attraktiven Gartenhof zwischen Gebäude und Sportplatz. Dieser Bereich kann sowohl für öffentliche Veranstaltungen als auch für sportliche Angebote in den warmen Monaten genutzt werden. Überdachte Außenflächen bieten Nutzer*innen und Besuchenden ganzjährig Schutz vor Witterungseinflüssen und laden zum Verweilen und Begegnen ein.

Der gestaltete Außenbereich erweitert die Nutzfläche sinnvoll und bietet zusätzliche Flexibilität für verschiedene Aktivitäten. Zudem wird eine barrierearme bis barrierefreie Gestaltung und Ausstattung aller Räume, Sanitäranlagen sowie der Außenanlagen für mobilitätseingeschränkte Personen sichergestellt.

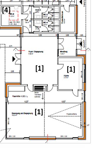
Raumgruppen und Flächen

Ausstattung
  • Multifunktionsraum mit verstaubaren Sitzmöglichkeiten für ca. 40 Personen – ca. 105 m²
  • Küche als Begegnungsraum – ca. 20 m²
  • Zwei WC-Anlagen sowie ein barrierefreies WC – ca. 25 m²
  • Eingangsbereich / Foyer / Windfang – ca. 140 m²

 

  

Mögliche Nutzungen im multifunktionalen Bereich

 

  • Treffpunkt für unterschiedliche Gruppen (z. B. Seniorentreff, Spieletreff, Bastelangebote)
  • Sportangebote (z. B. Turngruppen, Gymnastik, Yoga, Pilates, Tanzangebote, Eltern-Kind-Gruppen sowie Angebote für Kinder und Jugendliche)
  • Veranstaltungsraum (z. B. Workshops, Lesungen, Vorträge, Feiern, musikalische Darbietungen)

Die Öffnungszeiten der Anlage und des Gebäudes werden vom Bezirksamt Sennestadt in Abstimmung mit den beteiligten Akteur*innen vor Ort festgelegt.